![]() |
Faydacı yapı - proje Faydacı perdeli bina - proje - truss |
![]() |
Kırsal okul projesi Kırsal okul projesi - bitkiler - bölümler - yükselmeler - Gösterim |
![]() |
Beach house - quilca peru Beach House - bitkiler - bölümleri - yükseklikler |
![]() |
3D derslik 3D derslik |
![]() |
Saray Projesi - twoo bedrroms Proje - Twoo Bedrroms - bitkiler-bölümleri - yükselmeler ev |
![]() |
Komplo planı Komplo planı |
![]() |
Konut apartman - maracaibo Konut apartman - bitkiler |
![]() |
Bira fabrikası Bira fabrikası - bitkiler - bölümleri - Ayrıntılar |
![]() |
House - iki kat - proje House - iki kat - proje - bitkiler - bölümler - yükselmeler - Ayrıntılar |
![]() |
Eğitim Binası Eğitim Binası - bitkiler - bölümleri - yükseklikler |
![]() |
Köşedeki ev - la rioja House - La Rioja - bitkiler - köşe |
![]() |
Konut ev - proje Konut ev - proje - bitkiler - bölümleri - yükselmeler - elektrik - su tesisatı |
![]() |
Kültür Merkezi - oditoryum Kültür Merkezi - konferans salonu - bitkiler - bölümleri - yükseklikler |
![]() |
Kültür Merkezi - Kütüphane Kültür Merkezi - Kütüphane - bitkiler - bölümleri - yükseklikler |
![]() |
Emeklilik - bitkiler Emeklilik - bitkiler |
![]() |
Planı - los chimus - müşterek konut arsa PLANO DE TRAZADO Y LOTIZACION DEL CENTRO POBLADO LOS CHIMUS. DISTRITO DE SAMANCOPROVINCIA DEL SANTAREGION: ANCASH. Peru |
![]() |
Colonial ev Colonial ev - bitkiler - bölümleri - yükseklikler |
![]() |
Apartman - beş katlı Apartman - beş katlı - bitkiler - bölümleri - yükseklikler |
![]() |
Sınıf Oda - proje - betonarme Oda - proje - betonarme - elektrik sınıf |
![]() |
İki katlı ev İki katlı ev - bitkiler - bölümleri - yükseklikler |
![]() |
Apartment building Apartman - bitkiler - bölümleri - yükseklikler |
![]() |
Fakülte Ulusal yapı Öğretim Milli Binası |
![]() |
Kınamak - proje Kınamak - proje - bitkiler - bölümleri - yükseklikler |
![]() |
Evin dört bedrroms Evin dört Bedrroms - bitkiler - bölümler - yükselmeler - elektrik |
![]() |
Ev - iki kat House - iki kat - bitkiler - bölümleri - yükseklikler |
![]() |
Otobüs istasyonu Otobüs istasyonu - tesisi - yükseklik |
![]() |
Seyahat acentaları - bitki Seyahat acentaları - bitki |
![]() |
Yel değirmeni. 3D Yel değirmeni. 3D |
![]() |
Sinema Sinema - bitkiler - bölümler |
![]() |
Mağaza ev House - bitkiler depolamak |
![]() |
Gençlik hostel - bitki Gençlik hostel - bitki |
![]() |
Müze Müze - bitkiler - bölümleri - yükseklikler |
![]() |
Apartman - 4 kat Apartman - dört katlı - bitkiler - bölümleri - yükseklikler |
![]() |
Apartman - proje -Bölümleri - yükselmeler apartman - proje - bitkiler |
![]() |
Turist sığınak - bitki Turist sığınak - tesisi - Mitla Oaxaca |
![]() |
Kongre Merkezi - bitkiler Kongre Merkezi - bitkiler - Tacna - Peru |
![]() |
Ofis Binası Ofis Binası - bitkiler - bölüm - yükseklik |
![]() |
Apartment building Apartman - bitkiler - bölümleri - yükseklikler |
![]() |
Otobüs istasyonu projesi Otobüs istasyonu projesi - bitkiler - bölümleri - yükseklikler |
![]() |
Mağaza evi projesi Saray Projesi - bitkiler - bölümleri - çizimleri depolamak |
![]() |
Office evi projesi Office Ev projesi - bitkiler - yükseklikler |
![]() |
Üç katlı - proje Tripleks - proje - bitkiler - bölümleri - yükselmeler - Ayrıntılar |
![]() |
Sahil evi Beach House - bitkiler |
![]() |
Jeotermal tesisi - Ayrıntılar Jeotermal tesisi - Ayrıntılar |
![]() |
House - üç yatak odası Evi - 3 yatak odası - bitkiler - bölümleri - yükselmeler - Ayrıntılar |
![]() |
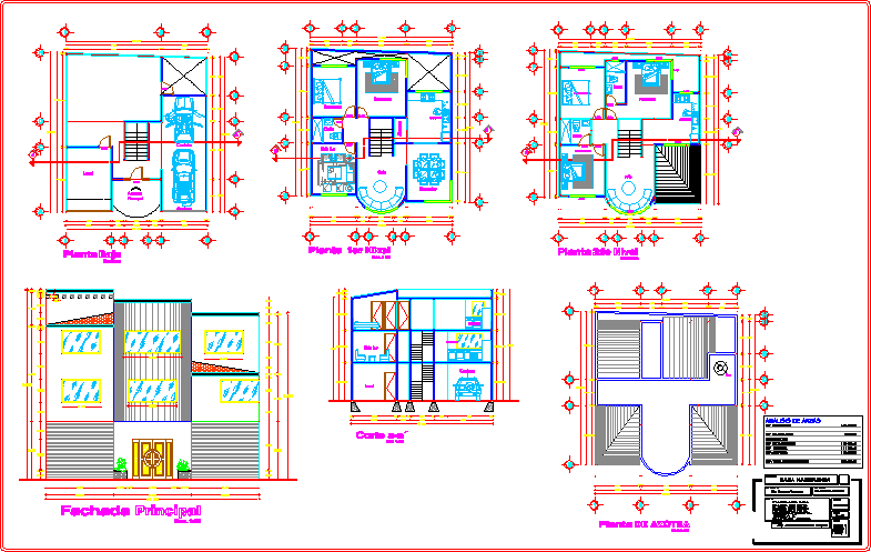
Tripleks Tripleks - bitkiler - bölümler - yükselmeler - detaylar - elektrik - su tesisatı |
![]() |
Hotel - remodelation -Çizimleri - otel - bitkiler - bölümler |
![]() |
Kilise Kilise - bitkiler - Ayrıntılar |
![]() |
Otel - twoo yıldız Otel - twoo yıldız - bitkiler - bölümler |
![]() |
Otel - proje -Bölümleri - yükselmeler otel - proje - bitkiler |