![]() |
Konut fgs 03 Konut - tam proje |
![]() |
Konut fgs 02 İki bitki konut architectonic proje |
![]() |
BI-aile 3d konut 3D konut |
![]() |
Eko otel extremo villavicencio içinde 3d Model Extremo Hotel - Villavicencio AUTO CAD |
![]() |
Eko otel extremo - villavicencio Geliştirme projectof Villavicencio - otelin Extremo dosya tesislerinde - diğer dosya modeli 3D AUTO CAD |
![]() |
Multifamily bina Mimari uçaklar, sinyal ve tahliye uçaklar multifamily Binası |
![]() |
Odalar 3d Aile gövdeleri, Tipe |
![]() |
Bale Okulu Bale Okulu - bitkiler - Gösterim - bölümler |
![]() |
Cephe - izometrik görünümü Cephe.-aile konut izometrik görünümü |
![]() |
Uçaklar Meksikalılar - san salvador - el Salvador Belediye Sarayı Belediye Sarayı tasarım uçakların komple set... |
![]() |
Konut 3 bitkiler Konumu, aletleri, bitkiler - bölümleri - yükseklikler ile konut |
![]() |
Mühendislik ofis Proje Mühendislik Büroları - bitkiler - bölümleri - Gösterim tamamlamak |
![]() |
Konut 3 yatak odası Bir düzey - bitkiler - bölümleri - Gösterim projesi |
![]() |
Yüksek zemin - 3d konut Yüksek bir düzey konut |
![]() |
Bölümler- Bölümler - mimari uçaklar - bitkiler - yükseklikler |
![]() |
Andalucia Condominium Architectonic bitki tam eksenleri - bitki |
![]() |
Sosyal faiz 54.50 m2 konut -Yapı - sosyal faiz 54.50 m2 kurmak - tam uçaklar, teçhizatları konut tamamlandıktan |
![]() |
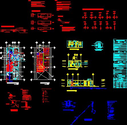
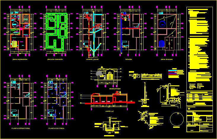
Konut yönetim projesi Konut projesi ile architectonic - temel - Structurs - elektrik ve sıhhi tesisat ve hidrolik - uçak |
![]() |
Restoran 3d Auto CAD 3D Restoran |
![]() |
Konut - uçaktan Architectonic bitkiler, bölümler, cephe ve ayrıntıları içeren |
![]() |
Aile konut -Bitkiler - bölümler konut geliştirme. Yükseklikler |
![]() |
Müstakil ev Ticari deposuyla müstakil ev üç düzeyleri |
![]() |
Sosyal konut Sosyal konut - tam - bitkiler - bölümleri - Gösterim resimleri |
![]() |
Konseyi Belediye Meclisi - cephe, zemin ve birinci düzey uçaklar |
![]() |
Amplifikasyon ve tadilat ev Evin önceki ve amplifikasyon-bitki - yükselmeler - Ayrıntılar sonraki architectonic bitki |
![]() |
Residence konteyner Proje ikamet konteyner teknik detayları |
![]() |
Sığınak - Inn Öğrencinin projesi sığınak içinde stepp - tesisi - Bölüm - görünümü bulunan |
![]() |
Minimum gövdeleri Kılıfını üç düzeyde öğrenci projesi - bitkiler - bölümler - Gösterim - ölçek 1100 ve 1 50 - grup |
![]() |
Infra eğitim yapısı - 05 derslik ve ss.hh 2 seviyelerinde öngörülen Proje 5 derslik ve SS HH 2 seviyelerinde tahmin |
![]() |
Ülke ev 3d Havuz ve jakuzi ile aile konut |
![]() |
3D konut bloğu Blok kılıfını Guayaquil şehirde bulunan 3D |
![]() |
Mobilyaları ile konut Konut - bitkiler - bölümleri - yükseklikler |
![]() |
Konut -Grup Architectonic tesisi - iki bölüm - 2 yükseklikler konut |
![]() |
1 bitki 54 m 2 konut projesi Bir bitki - önlemler 7.05x7.65m - Sup 54 m2 - yaşam, Dinig, mutfak, banyo, 2 yatak odası konut projesi |
![]() |
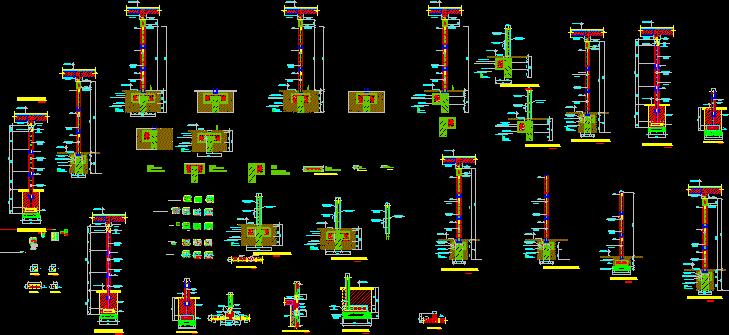
Konut bir bitki 3 yatak odası, yaşam - yemek - mutfak - banyo - Architectonic bitki ve vakıf tesisi-bölümler - yapısal detaylar - Sıhhi ve izometrik görünümü ile uçak müstakil ev |
![]() |
Doğrama Atölyesi Model ahşap Atölyesi |
![]() |
2 yatak odası - oturma odası ile kırsal konut Kırsal konut 2 yatak odası - açık otopark - oturma odası |
![]() |
Müstakil ev 2 bitkiler Aile evi 2 - 3 yatak odası - bitkiler oturma - yemek - iki araba - tuvalet ve banyo otopark |
![]() |
İstasyonu - otel Bitkiler - bölümler - Gösterim - Hoteñ |
![]() |
Farklılıkları konut Fark Peru Plajı'nda konut |
![]() |
Çift yönlü 3d Farklı houising projeler için model |
![]() |
Sauna sanayi ve çoklu hizmetler Bina 6 seviyeleri - ilk levelladies dolap, erkekler ve Kuaför - ikinci düzey sauna, nemli kamera ve dryjacuzzi erkek - üçüncü levelsauna nemli kamera ve bayanlar - 4 - 5 ve 6 için Kuru Jakuzi için düzeyleri birden çok Hizmetleri |
![]() |
Otel - architectonic bitki Otel dağıtım - bakış bitki - yükseklik- |
![]() |
Konut tipi kat mülkiyeti Konut tipi kat mülkiyeti kırsal kentleşme - iki seviye tasarımı |
![]() |
Restoran Restoran tasarım meydanlarda architectonic bitkiler |
![]() |
Costa Verde Kültür Merkezi COSTA VERDE İÇİN YAPILAN PROJE - -LA HERRADURA PLAJ |
![]() |
Hostal tablon Hostal - bitki |
![]() |
Bina durum Comercial - bitkiler - bina bölümleri |
![]() |
Aile konut Aile konut - bitkiler - bölümleri - Gösterim |
![]() |
Toptan pazarı Kendi longitud içinde sağlanan toptan Pazar acil |