![]() |
Çok amaçlı Oda misyoner Kilisesi Salon birden çok missional Kilisesi - komple tasarım |
![]() |
İki katlı ev -Bölümleri - Gösterim KARŞILAŞTIRMALI konut - daire yükseklik - bitkiler |
![]() |
Evleri 194 m2 ev iki katlı yapıları ve özellikleri platnas |
![]() |
Daireli ev karmaşık--Türkiye Bu proje bir apartmanın projesidir. Planı bölümleri ve yükseklikler ince ayrıntılarla mevcuttur. Mevcut çatı planı. Bu proje doğru bir projedir. |
![]() |
Konut Projesi Konut Projesi |
![]() |
İdari ofisler, 3 katlı bina Rektörlük Binası 3 katlı - bina |
![]() |
Belediye Kültür Merkezi Belediye ekipmanları, çocuk bakımı ve bakım alanları SUM alanları ile |
![]() |
Turizm Yardım Merkezi Eski ev, turist bilgi Tapalque Merkezi City, Buenos Aires eyaleti remodeled. Turist bilgi, altıgen tasarım, şeklinde - için genel proje dağıtılan bir yönetim alanı, sergi odaları ve bir bar alanı keser, cephe bitkiler. |
![]() |
Evleri Bu proje oluşur: Suit, Çift Kişilik bir yatak odası, tek bir yatak odasına, yaşam, yemek, mutfak, aynı zamanda ziyaretçilere hizmet vermektedir bir ortak banyo. Tüm bu sadece 60 m2. |
![]() |
Multifamily Ayrıntı bitkiler, kesimler ve ayrıcalık. |
![]() |
Bir aile konut, 2 kat sayısı Bu evi ilk ve ikinci düzey, boyuna ve enine izometrik cephe ve çatı katın mimari planı içerir. |
![]() |
Bir aile tam proje mimari konut, Tam detaylı Mimari ev |
![]() |
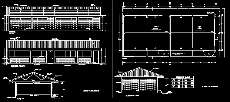
Okulu, 9 derslik, Tebriz, iran Tabriz 9 sınıf ile okul projesi |
![]() |
Bina, beton struture daireler Beton yapısına göre bir apartman taslak, dosyanın sahip planları bölümleri, cepheler, Etiketler, birkaç blok. |
![]() |
3D kabin 3D modeli - katı modelleme |
![]() |
Konut - çift yönlü 2 yatak odası - eğitim - banyo oda - banyo Türkçe - bitkiler - bölümleri - açık |
![]() |
Okul biyo - teknoloji Genel plan - belirtme |
![]() |
Eğitim Merkezi Genel plan - belirtme |
![]() |
3D konut dubleks MODELİ inç katı - çift yönlü - Teras dokular erişilebilir- |
![]() |
Merkez otobüs -Bölümleri - inşaat detayları - detaylar - özellikleri bitkiler |
![]() |
Otobüs terminali Bitkiler - kesitler, yükseklikler - elektrik sistemi - hidrolik - sıhhi |
![]() |
Konut ofis -Bölümleri - yükselmeler - yapıları - elektrik ve sıhhi teçhizatları bitkiler |
![]() |
Aile konut dubleks 4 yatak odası - eğitim - Teras - komple planları - yapıları - Temeller - elektrik - bitkiler - cepheler erişmek |
![]() |
Odalar düz barbacay Yapıları - detaylar - teknik özellikler |
![]() |
Sınıflar, cachubamba, peru Mimari plan - dağıtım - - yükselmeler - iki derslik bölümleri |
![]() |
Alışveriş Merkezi ve konut daire Tasarım görevdi bir alışveriş merkezi ile toplam alanı 1500 m2 bir podyum olarak oluşturmak için ve 3 bina ayrı çıkışları ile konut daire üzerinde alışveriş yapmak |
![]() |
EcoVillage Ev ticaret ve yeşil alanlarda geliştirilmesi bütünleşmesi için çalışır Ttrabajo sürdürülebilir Mimarlık |
![]() |
Okul sağlık Erkekler ve kadınlar için pil banyo bitki kesintileri yükselmeler, elektrik sistemleri, sıhhi tesisat, Temeller. |
![]() |
Yerleşim birimi Yerleşim birimi düzeyinde medya |
![]() |
Ticari Anket ticari office 80m 2 yaklaşık Gral Plano. Sayısı keser, teçhizatları, Emanet ateş. |
![]() |
Residence 2 kat Evi konut 3 yatak odası, oyun salonu, havuzu ve sosu ile |
![]() |
Alışveriş Çeşitli dükkanlar, yerel gıda, fast food, alışveriş merkezi taksi hattı dağıtım bitki ve bitki çatı containest |
![]() |
7 kat Otopark, ortak alan ve ayrı bölümler ile 7 seviyesi yükseldikçe |
![]() |
İki katlı eğimli üzerinde iki katlı tek aile konut yer, basit ve fonksiyonel tasarım tutmak istedim |
![]() |
Evleri Konut tipi üç düzeyli miras alan arazi engebeli ve küçük evi |
![]() |
Ev 4 BHK VILLA |
![]() |
Ev Evi 4 bhk |
![]() |
House 3 yatak odası House 3 yatak odası |
![]() |
Eğitim modülü Ahşap eğitim - Perulu Amazon - komple tasarım modülü inşa |
![]() |
Multi - amaç topluluk salonu, Perulu amazon Perulu Amazon yerel toplumda çok amaçlı Oda |
![]() |
Konaklama, 2 kat sayısı 2 katlı komple proje barındırma |
![]() |
Eğitim sınıf Sınıf dersleri inşaat - daha fazla ayrıntı - tam projesinin inşaatı |
![]() |
Müstakil ev House 2 kat 4,82 x 20.0 - bitkiler - bölümleri - Gösterim - alanındaki projeyi tamamlamak |
![]() |
Konuk - ev Konuk Evi plansection ve yükseklikler |
![]() |
Pedregal, locumba peru Turizm Projesi-petrogliphs Petrogliphs--siteleri, görmek için turistik yol izler, vistas Puan imzaladı. |
![]() |
Multifamily Multifamily konut projeleri uçak keser ve hacimsel 3D |
![]() |
Düşük gelirli sosyal konut Proje habilitaciónal yoksul - mimari planları |
![]() |
Konut, 1 katlı, huzurlu bir aile Kat planları, bölümler ve cepheler |