![]() |
Titreşimli ayırıcı, elek sınıflandırma Taneli partikül boyutları sınıflandırma içinde dairesel titreşimli cihazları. temel olarak hareket block making elek ve sınıflandırma parçacıklar hareketliliğini etkili titreşimli bir motorlu araç dönme hareketi dönüştürür |
![]() |
Çimento fabrikası, magotteaux klinker değirmen 3d Dokular ile 3D modeli - katı modelleme- |
![]() |
Flanş fişinde - 3d -İLGİLİ, BORULAR, ENDÜSTRİYEL 3D FLANŞ FORMU. |
![]() |
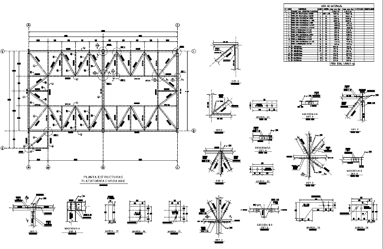
Konveyör rulo, yükleme ve dönüş, 30 3D RODILLO YÜKLEME VE DÖNÜŞ GRUBU 30 |
![]() |
Enginar paketleme hattı Bu satırın ham enginar ve oluşan bir üst kanal hangi sitrik asit, enginar korunması için suyla recirculates üstüne işlemi yapar |
![]() |
3D spur gear Adım 4 |
![]() |
Torna Heads sap kafası 4 jaws - 3d 75mm diamenter levha, bağımsız çene |
![]() |
Siklon parçacık ayırıcı ve destek yapısı Siklon sensör katı parçacıklar önce kabul Torbalı filtre |
![]() |
Şaft yükseltilmiş kova veya diğer kullanım için davul Denetim Tambur mili, flanşlar kaplin ayarla ve rulmanlar SKF marka ayak. Bu set ama öncelikle bir sormadım kova denetim için tasarlanmış diğer her türlü makine kaldırma ve taşıma için adapte edilebilir |
![]() |
Hidrolik Pres için platform Bu platform Hidrolik Pres eritme tesisinde bir kurulum için gereklidir |
![]() |
3D çelik makaralar Makaralar çelik arasında köprü görevi gören ve eros boru Katener yapıları geçirir |
![]() |
Planları rezervuar 7m 3 7m 3 rezervuar planları - Mimarlık, yapı hypochlorinator |
![]() |
Dişli, pinyon, zincir dişli Vista ve bölüm |
![]() |
LPG depolama tankı Kapasite 2000 galon - 3d Model - katı modelleme - dokular olmadan |
![]() |
Küresel Vana Küresel Vana (türü) öğe eklemek veya basınç altında sıvı yapmak için mekanik boru sistemleri montajı için. |
![]() |
Sarnıç tank 12 m3 AYRINTILAR TANK |
![]() |
Pompalar ve elektrik denetimleri Detaylar - özellikler - boyutlandırma |
![]() |
Ekskavatör, kamyon, üst ile ağır yüklü görüntülemek 2d Kullanılan ağır kazıcı |
![]() |
Yeraltı rezervuar, 130 m3 130 m3 su deposu estrucuras tasarım, çelik dağıtım ve belirli ayrıntıları tasarım |
![]() |
Ahşap pek mutlu 1250cv MAKİNE tasarlanmış için yumuşak ahşap yonga. ONUN MOTORU, KAPLİN VE KONTROL İLE. |
![]() |
Acil durum jeneratörleri, genset BİTKİ acil - itmeyi |
![]() |
Pnömatik solenoid aktüatör Vana tipik derleme diyagramı 5v / 2p pnömatik solenoid pnömatik aktüatör Vana birleştiğinde morin vanessa Vana |
![]() |
Su pompalama sistemi Bir su sistemi bitki yiyecek - 3D pompa tamir |
![]() |
Galvanizli kelepçe boru kelepçe--d türü Kısmı galvanize çelik duvarlar, çeşitli çaplarda galvanizli borular tutmak için kullanılan. |
![]() |
Elektrik İletim 1500 mm Elektrik İletim 1500 mm uzun |
![]() |
Hidrolik pompa mili, vickers hidrolik pompa Akslar Vickers hidrolik pompa 2 türleri |
![]() |
Asansör ve silo Noria ve Asansör veya yükleme ve boşaltma silo exentrica |
![]() |
Bodrum tank, yükseltilmiş zemin, duvar ve pencere bölümü Ek ayrıntı tanking Bodrum kat ayrıntı ve ayrıca duvar ve pencere bölümünde ortaya çıkar |
![]() |
Tırtıllı Dizel jeneratörler madencilik için Santral araştırma tesisi için tasarım. -Marka dizel gensets kedi |
![]() |
Endüstriyel konut Endüstriyel 3d döken |
![]() |
Pompa Odası Pompa Odası - ayrıntı |
![]() |
3D kova Kova kürek için |
![]() |
Howell bunger Vana, içi boş jet Vana Üç - boyutlu modeli Howell Bunger vana veya içi boş jet Vana. |
![]() |
Radyal kam takipçisi Adım adım bir cam oluşumu için! |
![]() |
3D hava kompresörü Çift kafa kompresör ile 4 HP motor - modeli d hava |
![]() |
Bilya yatakları Çekmece topu capacho incelemesi |
![]() |
3d cross Malta Mekanizması Malta haçı aralıklı |
![]() |
Dışa dönük odası Petrol - çukur yakmak için |
![]() |
Kimyasal sıvı bir petrol pompa istasyonu içinde sistem dağıtımı KİMYASAL sıvı dağıtım sistemi inç bir Petrol pompalama istasyonu, platformlar ve merdivenler tankları kapalı |
![]() |
Sulama booster pompa döken 3D model - katı modelleme - texture - çok detaylı |
![]() |
Sulama solenoid valf 3d 3D model - katı modelleme - dokular olmadan |
![]() |
Baraj Kepçe Baraj Skimmer |
![]() |
Birincil işleme tesisi hamsi -Bölümleri - cephe - temel - yapı - yükleme - hidrolik - elektrik - sağlık bitkiler |
![]() |
Benzin pompası BENZİN pompası - planı |
![]() |
3D kasnak Kasnak ve kemer |
![]() |
3D çelik zincir Kullanılan dize Fork - Lift |
![]() |
Fan Alt pompa |
![]() |
Klinker ekran makine, çimento Makine tarama |
![]() |
Yükleme rıhtım yapıları 3 yapı kat planları - yükselmeler akslar - inşaat detayları ve kalkışta. |