![]() |
Levha temel Ayrıntı temel levha ve ankraj kale - teknik özellikler |
![]() |
Duvar paneli Ayrıntı anchorage Duvar panosu temel |
![]() |
Tridilosa Yapıcı detailof zırh - teknik özellikler |
![]() |
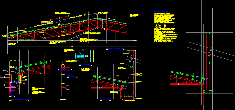
Çatı detayları Ayrıntı çatı - teknik özellikler |
![]() |
Bölümleri farklı döşeme Döşeme teknik özellikleri ile silahlı beton - bölümleri - detayların birkaç sınıf |
![]() |
Ayrıntı Birliği kale ile duvar'dir Ayrıntı Birliği'dir - cephe duvarları ile bölüm duvar ile kale ve iki bitkide levha |
![]() |
Ayakkabı detay Hareket ayakkabı - sütunları ve kaleler |
![]() |
Cephe bölüm Ayrıntı cephe bölümü malzemeleri - delik tuğla duvar - kiriş'ın levha ile |
![]() |
Detay bağlantı konsolu tabanı ile Bağlantı sütun - base - ayrıntı zemine detay |
![]() |
Ayrıntılar duvar Oran duvar temel ve onun alanı bölümü tarafından yaklaşımlar |
![]() |
Ciclon kafes - çevre çit çit Çit Ciclon mesh - ön görünüm |
![]() |
Uygu destek lamine ışın Ayrıntılı destek lamine ışın - camlı paneli - bölüm - teknik specificatons |
![]() |
Dövme Balkon dövme - Model 3D |
![]() |
Detay metal çatı Detay metal çatı polysport spor salonu - tesisi - bölümler - detaylar - teknik özellikler |
![]() |
Bölüm bina - çatı Bahçe ile Yapı bölümü - Bahçe, çatı - teknik özellikler |
![]() |
Sıhhi ayrıntıları Ayrıntıları kayıt defteri - drenaj için ev alımı için ağlar yükleme |
![]() |
Metalik ridge çatı Metalik ridge çatı - ayrıntılı teknik özellikler ile |
![]() |
Bölme duvar (ortak çamur) Duvar bölümü - tuğla - teknik özellikler |
![]() |
Kaldırıma kutusu 1.00x1.20m Kaldırıma kutu 1.00x1.20m - tesisi - bölümler |
![]() |
Kayıt iyi kapak Kapak kayıt de ikincil Toplayıcı |
![]() |
Kaldırıma kutusu 080x1.00. Kaldırıma kutu 0.80x1.00m - tesisi - bölümler |
![]() |
Yapıcı ayrıntıları saçak kiremit çatı Yapıcı ayrıntıları saçak kiremit çatı - teknik özellikler |
![]() |
Ortak vakıf Ortak ve temel - bölüm hareket |
![]() |
Ayrıntı klasik Ayrıntı klasik - hafif levha - teknik özellikler |
![]() |
Retiküler kiriş detay Retiküler ışın - destek detayı - teknik özellikler |
![]() |
Detay metal çatı Detay metal çatı - teknik özellikler - alınmış önlemler |
![]() |
Detay metal çatı Ayrıntılar metalik çatı - teknik özellikler |
![]() |
Yapıcı bölüm Yapıcı bölüm cephe gelen öğrencilerin ikamet |
![]() |
Cephe'nın bölümü Cephe bölüm-geçit - Losacero - Romsa - teknik özellikler - Ayrıntılar kapalı'nın |
![]() |
Çelik sütunlar blokların demirleme Kare çelik sütunlar için demirleme blok duvarlar |
![]() |
Yapısal proje Proje otelin yapısı - Temeller ile kaburga - merdiven - levha bitki. |
![]() |
Eğimli çatı - ayrıntı temiz cilt payı Ayrıntı eğimli çatı ile temiz cilt payı - teknik özellikler |
![]() |
Yapı san andres ofisleri San Andres - Kolombiya ticari bina |
![]() |
Retak - pervaz Retak - dekorasyon öğeleri |
![]() |
Metal çatı Metal çatı - 3D - uygulanan malzemeleri- |
![]() |
Bölüm Cephe - detaylar - teknik özellikler - iki bitkiler - stor perde ile bölüm |
![]() |
Ayrılmaz bölüm Ayrılmaz bölümü - cephe - 2 bitkiler - çatı ile hava havalandırılmış fotoğraf makinesi ile bölüm |
![]() |
Kale Birliği Ayrıntı kale Birliği'dir - kapalı önlemler ile ayrıntılı duvar ile |
![]() |
Sifon yatırım türü Ütüler ve metrik hesaplamalar listesi ile |
![]() |
Pencere detay Pencere detayı - teknik özellikler |
![]() |
Silahlı beton Orkestrası Silahlı beton Orkestrası - ışını altında blokları eşkin - teknik özellikler |
![]() |
Multifamily - hosing bitki temelleri Multifamily evi - Temeller - yapıcı detaylar - merdiven yol tesisi - temelleri |
![]() |
Ayrıntı merdiven Ayrıntı merdiven - ayrıntı merdiven sırt-ilişikte önlemler-demiryolu |
![]() |
Ayrıntılı weldind Kaynak çeşitli ayrıntılar |
![]() |
Cam kubbe Cam kubbe metalik yapısı üzerinde yapıcı detay |
![]() |
Farklı yüksekliklerde demeti bağlantı Metalik yapısı - bağlantı farklı altitud kirişler. |
![]() |
Çelik kiriş destek Sim yapı |
![]() |
Binanın yapısal bitki Yapıcı ayrıntıları - malzemeler özellikler - blok yapıcı öğelerin - yapı profilleri ve inşaat belirtme |
![]() |
(Temel) yapı bölümü yapısal bitki Ayrıntılar kazık inşaat - görüş temel - özellikler - inşaat yordamlar temel için sürtünme yığınları üzerinde dayalı. |