![]() |
Düz çatı h = 10 cm Ayrıntı levha çatı ile belirtme |
![]() |
Konstruksi kuda - kuda 2d - 2D kapak çatı inşaat Konstruksi Kuda - Kuda 2D - çatı detay kaplama |
![]() |
Su banyo Tam su lavabo |
![]() |
Yapıcı bölüm Yapıcı bölüm pluri-aile Binası |
![]() |
Güverte Restorasyon ahşap güverte geri yükleme |
![]() |
Metalik profiller Birkaç metal profiller |
![]() |
Hapishane uçak - Ayrıntılar temel İdealleştirme ömrünüzü İnşaat |
![]() |
Blok 3 25 cm kazıklar 25 cm 3 blok taç skates |
![]() |
2 blok 25 cm kazıklar 25 cm 2 blok taç kazıklar |
![]() |
Blok 1 bahis 25cm için Bahis 25cm için blok taç |
![]() |
Ayrıntıları bölümleri Farklı ayrıntıları bölümleri ve dövme kafes karşılaşma |
![]() |
Öğrenciler Konağı - bölüm Binanın öğrenciler için yapıcı ayrıntılarla temelden çatıya bölüm |
![]() |
Bölümler 1; 200 multi fonksiyonel pavilion Bölüm 1: 200 multi fonksiyonel pavilion detaylar - kapak sürekli folyo ile |
![]() |
Multi fonksiyonel pavilion - Bölüm 1: 100 Bölüm 1: 100 - Multi fonksiyonel pavilion |
![]() |
Ayrıntı kutusunu inceleme Yapıcı ayrıntılı denetim kutu - tesisi - bölüm |
![]() |
Yapısal ayrıntı Ayakkabı Dosya ayrıntıları duvar yapısı ile ayakkabı boyutları dahil |
![]() |
Kapak detay Ayrıntı çatı içinde yalıtımlı ahşap ile |
![]() |
Arasında ahşap panel Arasında ahşap panel |
![]() |
Hendek Silahlı açmanın yapısal detay |
![]() |
Ahşap Kirişler Ayrıntılar bağlantı destek kiriş ahşap sütun - ve bağlantı ahşap sütun beton sütun ile ahşap kiriş- |
![]() |
Yapısal çerçeve Enine bölümlerini iki çerçeve yapısal yazın ve 2 farklı köşeli ayraç ile silahlı |
![]() |
Kare erişim ayrıntıları ile Plaza de acceso de una escuela con detalles de jardineria; herreria y de albanileria. Okulun Bahçe detaylar - duvar ve borge ile kare erişim |
![]() |
Yapıcı bölümleri - mertallic kapak Yapıcı bölümler - birkaç detaylar - alveoler policarbonate plaka - sırlı kapak Aluzinc termo |
![]() |
Yapıcı bölüm aile konut Yapıcı bölüm aile konut; Bodrum: lobi Çift Kişilik yüksek; kapak çini |
![]() |
Kapak detay Tersine çevrilen trafficable düz çatı |
![]() |
Detay düz çatı Doğranmış yarım bir ayak ile eğimli kapak |
![]() |
Yapıcı ayrıntıları Ayrıntı kapak ön ön ile |
![]() |
Ahşap kapak 3d 3D ahşap kapağının çelik plakalar ve vidalar da kullanarak bağlantıları gösteren Ayrıntılar stringers eklem; Kiriş ve sütunlar, vb |
![]() |
Ayrıntılar metalik yapılar Metalik yapıların beton ile - bağlı bilgi çoğu kirişler IP türü- |
![]() |
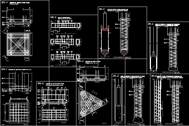
Borulu kule 45mts Kule 45mts borulu, cep telefonu antenler - yükseklik ve izometrik görünümde - telefon site tasarımı montaj için |
![]() |
İkincil recuperator temel İkincil recuperator üsleri silahlı Betonda ve somun çapa bir endüstriyel fabrika - destek üsleri dahil |
![]() |
Parmaklıklar 3d Wipeour cephe sistemleri için farklı önlemler ile korkuluk |
![]() |
Ayrıntılı olarak ahşap yapı bakış Ahşap yapı - perspektif detay |
![]() |
Temeller Komple uçak temelsof tek aile - Columns.stair Ayrıntılar durumlarda - Temeller - çapa - sinyaller temel - sendika ayakkabı konut |
![]() |
Yapısal detayları ve plakalar Ayrıntılar plakaları ve ayrıntıları yapıcı |
![]() |
Yapıcı ayrıntıları bambu Bambu yapıcı ayrıntıları |
![]() |
Mimari multifamily konut - Ayrıntılar 3 bölümler - bilgi yapıları ile multifamily konut |
![]() |
Remadeling -Plan - bölümleri - Gösterim tadilat bina |
![]() |
Derece Derece modül |
![]() |
Su sağlama yapıcı ayrıntıları kapak Yapıcı ayrıntıları bitüm membran kapak sağlama için geotextil ile |
![]() |
Zemine düşük duvarlar Düşük ayak basacak duvarlar - çeşitli detayları |
![]() |
Balkon kirişler Balkon sinyaller - çeşitli detayları |
![]() |
Planları düzeyi çatı Planları düzeyi çatı - tavan detayları: sabitleme kirişler için; sürekli çatı Alçı plaka kamışı fiksasyonu ile |
![]() |
Planları tanquilla rush Tanquilla planları |
![]() |
Bölümler Planları duvarlar alçı |
![]() |
Orta planları destekler Planları Birliği, ortam desteği, sabit destekleyen |
![]() |
Planları beton kazık Beton kazık - çeşitli detayları |
![]() |
Planları profilleri alüminyum Profiller - teknik özellikler |
![]() |
Kaldırım planları Kaldırım planları |
![]() |
Tuğla duvarlar ile fotoğraf makinesi Tuğla duvarlar ile fotoğraf makinesi - planları |